6 933 465 Р 85 460 $ или 72 910

Информация о квартире

50 м2
Площадь
16 м2
Жилая
24 м2
Кухня
1
Комната
4
Этаж
17
Этажность
Развернуть
Агент
+7 (934) 442-42-14
Начать чат с агентом

1-комнатная квартира: Череповец, Рыбинская улица, 69 (50.6 м)

Дом Privilegia (Привилегия) строится в районе с уже сформированной социальной и транспортной инфраструктурой, при этом благодаря архитектурному и дизайнерскому решению, жилой комплекс выделяется среди уже существующих застроек и является доминантой этого района.Внутренняя территория полностью закрыта от машин и посторонних людей, что создает комфортные условия для прогулок и отдыха для всех членов семьи в любое время дня и ночи.Количество парковочных мест в подземном паркинге позволит оставить автомобиль в тепле и охраняемом месте, воспользоваться лифтом и подняться на свой этаж не выходя на улицу.Приобретая квартиру в ЖК Privilegia , вы можете быть уверенны в качестве строительства и своевременной сдачи объекта, так как наш генеральный подрядчик имеет безупречный практический опыт строительства.Наши квартиры растут в стоимости за счет их уникальности, функциональности, классификации жилого комплекса и отсутствия конкуренции в своем сегменте.Мы не строим типового жилья, которым переполнен строительный рынок. Мы предлагаем оригинальные планировочные решения, Авторский проект по своей архитектуре, светлые и уютные МОПы с дизайнерской отделкой, парадные с колясочными, зонами ожидания, систему безопасности 24/7, подземный паркинг, инфраструктуру внутри ЖК и много доп. опций для комфортного проживания, как и положено в настоящем бизнес классе.Современный ландшафтный дизайн, оригинальные архитектурные формы и многие другие вещи, которые приятно удивят вас после новоселья и создадут ценность не только квартиры, но и жилого комплекса в целом.Добро пожаловать

Читать полностью
    Позвонить Написать
    6 933 465 Р85 460 $ или 72 910
    Агент
    +7 (934) 442-42-14
    Начать чат с агентом
    Похожие предложения
    1-к кв. Вологодская область, Череповец Рыбинская ул., 69 (50.6 м) - Фото 1
    1-к кв. Вологодская область, Череповец Рыбинская ул., 69 (50.6 м) - Фото 2
    1-комнатная квартира, общая площадь 50м², жилая 16м², кухня 24м²

    Дом Privilegia (Привилегия) строится в районе с уже сформированной социальной и транспортной инфраструктурой, при этом благодаря архитектурному и дизайнерскому решению, жилой комплекс выделяется среди уже существующих застроек и является доминантой...
    • 50 м²
    • 1-ком
    • 4/17 эт.
    6 933 465 Р
    Агент
    +7 (933) Показать номер
    Посмотреть контакты
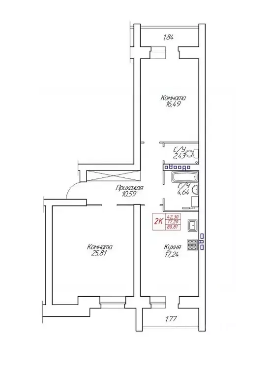
    2-к кв. Вологодская область, Череповец Устюженская ул., 14 (80.8 м) - Фото 1
    2-к кв. Вологодская область, Череповец Устюженская ул., 14 (80.8 м) - Фото 2
    2-комнатная квартира, общая площадь 80м²

    Продаётся 2-комнатная квартира в сданном доме (Устюженская улица, 14), срок сдачи: I-кв. 2025, общей площадью 80.8 кв.м., на 5 этаже. Пространство новой жизни Квартиры с отделкой в кирпиче от надежного застройщика, экологически чистый район, дом удален...
    • 80 м²
    • 2-ком
    • 5/8 эт.
    • кирпичный
    6 868 850 Р
    Агент
    +7 (800) Показать номер
    Посмотреть контакты
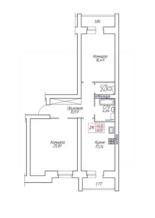
    2-к кв. Вологодская область, Череповец Устюженская ул., 14 (80.8 м) - Фото 1
    2-к кв. Вологодская область, Череповец Устюженская ул., 14 (80.8 м) - Фото 2
    2-комнатная квартира, общая площадь 80м²

    Продаётся 2-комнатная квартира в сданном доме (Устюженская улица, 14), срок сдачи: I-кв. 2025, общей площадью 80.8 кв.м., на 2 этаже. Пространство новой жизни Квартиры с отделкой в кирпиче от надежного застройщика, экологически чистый район, дом удален...
    • 80 м²
    • 2-ком
    • 2/8 эт.
    • кирпичный
    6 868 850 Р
    Агент
    +7 (800) Показать номер
    Посмотреть контакты
    2-к кв. Вологодская область, Череповец Устюженская ул., 14 (77.5 м) - Фото 1
    2-комнатная квартира, общая площадь 77м²

    Продаётся 2-комнатная квартира в сданном доме (Устюженская улица, 14), срок сдачи: I-кв. 2025, общей площадью 77.5 кв.м., на 7 этаже. Пространство новой жизни Квартиры с отделкой в кирпиче от надежного застройщика, экологически чистый район, дом удален...
    • 77 м²
    • 2-ком
    • 7/8 эт.
    • кирпичный
    6 897 500 Р
    Агент
    +7 (800) Показать номер
    Посмотреть контакты
    2-к кв. Вологодская область, Вологда Старое ш. (58.4 м) - Фото 1
    2-комнатная квартира, общая площадь 58м²

    Продаётся 2-комнатная квартира в сданном доме (Строение 1), срок сдачи: III-кв. 2025, общей площадью 58.4 кв.м., на 1 этаже. Жилой комплекс Графит от застройщика ВологдаГражданСтрой в городе Вологда.
    • 58 м²
    • 2-ком
    • 1/7 эт.
    • кирпичный
    6 856 000 Р
    Агент
    +7 (800) Показать номер
    Посмотреть контакты

    Не нашли подходящего объявления?

    Оставьте заявку, и наши риэлторы подберут квартиру в новостройке в районе Череповца

    (0)