Реализация объекта недвижимости приостановлена

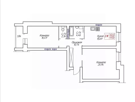
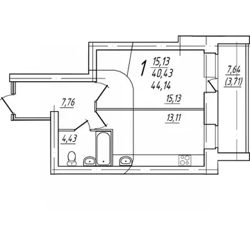
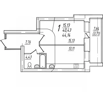
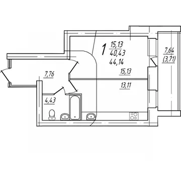
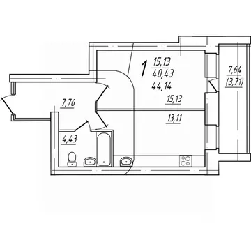
Информация о квартире

43.0 м2
Площадь
11.0 м2
Жилая
20.0 м2
Кухня
1
Комната
6
Этаж
17
Этажность
Развернуть

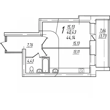
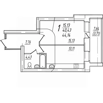
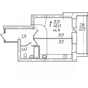
1-комнатная квартира: Череповец, Рыбинская улица, 69 (43.5 м)

Дом Privilegia (Привилегия) строится в районе с уже сформированной социальной и транспортной инфраструктурой, при этом благодаря архитектурному и дизайнерскому решению, жилой комплекс выделяется среди уже существующих застроек и является доминантой этого района.Внутренняя территория полностью закрыта от машин и посторонних людей, что создает комфортные условия для прогулок и отдыха для всех членов семьи в любое время дня и ночи.Количество парковочных мест в подземном паркинге позволит оставить автомобиль в тепле и охраняемом месте, воспользоваться лифтом и подняться на свой этаж не выходя на улицу.Приобретая квартиру в ЖК Privilegia , вы можете быть уверенны в качестве строительства и своевременной сдачи объекта, так как наш генеральный подрядчик имеет безупречный практический опыт строительства.Наши квартиры растут в стоимости за счет их уникальности, функциональности, классификации жилого комплекса и отсутствия конкуренции в своем сегменте.Мы не строим типового жилья, которым переполнен строительный рынок. Мы предлагаем оригинальные планировочные решения, Авторский проект по своей архитектуре, светлые и уютные МОПы с дизайнерской отделкой, парадные с колясочными, зонами ожидания, систему безопасности 24/7, подземный паркинг, инфраструктуру внутри ЖК и много доп. опций для комфортного проживания, как и положено в настоящем бизнес классе.Современный ландшафтный дизайн, оригинальные архитектурные формы и многие другие вещи, которые приятно удивят вас после новоселья и создадут ценность не только квартиры, но и жилого комплекса в целом.Добро пожаловать

Читать полностью

    Реализация объекта недвижимости приостановлена

    Не нашли подходящего объявления?

    Оставьте заявку, и наши риэлторы подберут квартиру в новостройке в районе Череповца

    (0)