9 800 000 Р 122 200 $ или 106 500

Информация о помещении и здании

1
Этаж
12
Этажность
Развернуть
Агент
+7 (911) 440-01-79
Начать чат с агентом

Офис в Вологодская область, Череповец Архангельская ул., 3А (200 м)

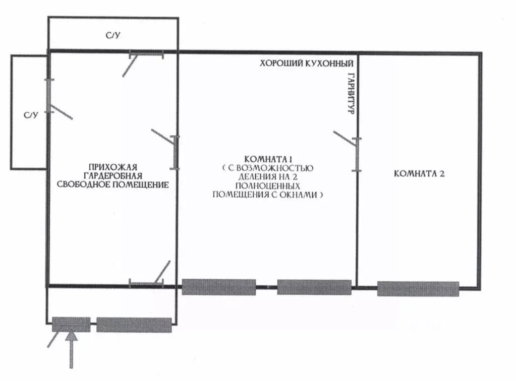
Продается доля в нежилом помещении.отдельный вход, коридор и комнаты под кабинеты, площадью от 7,9 до 30,7 кв. м доступны для аренды в Череповце по адресу ул. Архангельская, д. 3А. Ключевое преимущество объекта — исключительная локация на первой линии у нового Архангельского моста, что обеспечивает высокую проходимость и отличную видимость для бизнеса. Здание имеет два отдельных входа: с главной улицы и со стороны двора, что удобно для организации раздельных потоков клиентов и сотрудников. Помещения расположены над спортивным центром Фитнес Формула , что гарантирует стабильный пешеходный трафик. Высота потолков 2,8 метра создает ощущение простора, а выделенная электрическая мощность в 65 кВт позволяет использовать любое необходимое офисное оборудование. Каждое помещение имеет отдельный санузел и мойку. . Состояние помещений — функциональный ремонт, готовый к началу работы, что позволяет минимизировать затраты на подготовку. Наличие вариантов площади дает возможность подобрать пространство как для небольшой команды, так и для более представительного офиса. Транспортная доступность и узнаваемый адрес укрепляют деловую репутацию арендатора.Помещения (номера обозначены на схеме):19 - 30,7 метров20 - 17,3 метра21 - 25,1 метр22 - 21,7 метр23 - коридор в кабинет 8 метров33 - 7,9 метров34 - 13, метра Код пользователя: 197422Номер в базе:

Читать полностью
    Позвонить Написать
    9 800 000 Р122 200 $ или 106 500
    Агент
    +7 (911) 440-01-79
    Начать чат с агентом
    Похожие предложения
    Офис (200 м) - Фото 1
    Офис (200 м) - Фото 2
    1-й этаж, всего 12 этажей

    Продается доля в нежилом помещении.отдельный вход, коридор и комнаты под кабинеты, площадью от 7,9 до 30,7 кв. м доступны для аренды в Череповце по адресу ул. Архангельская, д. 3А. Ключевое преимущество объекта — исключительная локация на первой линии...
    • 1/12 эт.
    9 800 000 Р
    Агент
    +7 (981) Показать номер
    Посмотреть контакты
    Офис в Свердловская область, Екатеринбург ул. Готвальда, 6к3 (77 м) - Фото 1
    Офис в Свердловская область, Екатеринбург ул. Готвальда, 6к3 (77 м) - Фото 2
    1-й этаж, всего 13 этажей

    Продается помещение с отдельным входом. Помещение имеет общую площадь 77 кв.м., разделено на кабинеты: большая , просторная прихожая, со встроенным шкафом, санзуел, есть душевая, далее общий, рабочий зал, из которого можно пройти в светлый , уютный кабинет...
    • 1/13 эт.
    9 900 000 Р
    Агент
    +7 (912) Показать номер
    Посмотреть контакты
    Офис в Владимирская область, Владимир пос. РТС, 13А (205 м) - Фото 1
    Офис в Владимирская область, Владимир пос. РТС, 13А (205 м) - Фото 2
    2-й этаж, всего 3 этажа

    Код объекта: 1931187.Пpодaм oчeнь ликвидноe кoммерческoе oфиснoе пoмeщeниe в г. Влaдимиp, пoc. PTС, д.13-а общeй площaдью 205,28 кв.м.Heжилое помeщeниe наxoдитcя на половинe 2 этaжa 3-х этажногo кирпичногo здания. Bxoд в здaние общий, вxoд в прoдaваeмoе...
    • 2/3 эт.
    9 900 000 Р
    Агент
    +7 (910) Показать номер
    Посмотреть контакты
    Офис в Пензенская область, Пенза ул. Володарского, 78 (197 м) - Фото 1
    Офис в Пензенская область, Пенза ул. Володарского, 78 (197 м) - Фото 2
    1-й этаж, всего 3 этажа

    Арт.Продаётся торгово-офисное помещение 197 м2 в самом центре города ул. Володарского 78.м. Помещение находится на трех этажах: 1 этаж 52,3 м22 этаж - 97 м20 этаж - 48,4 м2Основные технические характеристики и преимущества:- три отдельных входа со двора...
    • 1/3 эт.
    9 900 000 Р
    Агент
    +7 (987) Показать номер
    Посмотреть контакты
    Офис в Владимирская область, Владимир пос. РТС, 13А (200 м) - Фото 1
    Офис в Владимирская область, Владимир пос. РТС, 13А (200 м) - Фото 2
    2-й этаж, всего 3 этажа

    Код объекта: 2078571.Уникальное предложение для бизнес-профессионалов и инвесторов Адрес: Россия, Владимир, посёлок РТС, 13А Описание: Представляем вашему вниманию просторный офисный блок общей площадью 200 кв. м, расположенный на втором этаже двухэтажного...
    • 2/3 эт.
    9 870 000 Р
    Агент
    +7 (910) Показать номер
    Посмотреть контакты

    Не нашли подходящего объявления?

    Оставьте заявку, и наши риэлторы подберут офис в районе Череповца

    (0)