1 790 000 Р 23 640 $ или 19 790

Информация о квартире

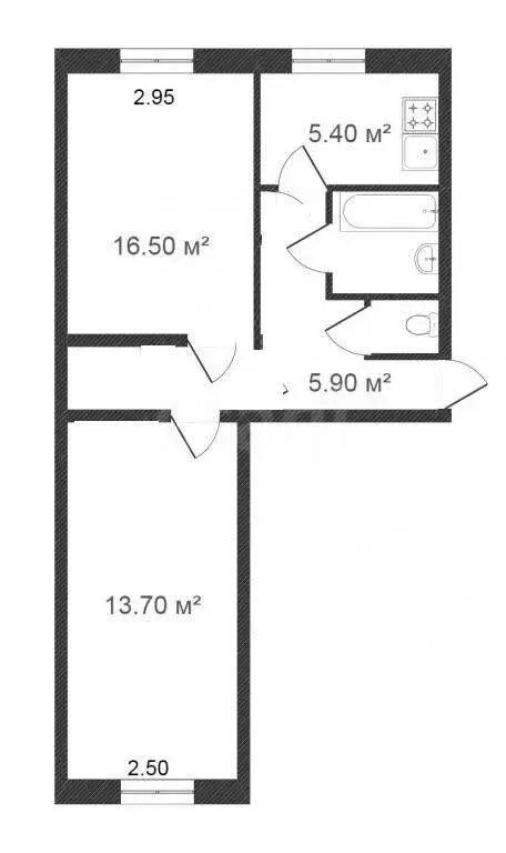
46 м2
Площадь
6 м2
Кухня
2
Комнаты
1
Этаж
5
Этажность

Дополнительная информация

Тип дома
кирпичный
Развернуть
Агент
+7 (911) 046-16-04
Начать чат с агентом

2-к кв. Вологодская область, Сокол Гражданская ул., 4 (46.0 м)

Продается двухкомнатная квартира площадью 46 кв. м. на первом этаже кирпичного дома 1974 года постройки. Объект предлагается без отделки, что представляет собой чистую возможность для нового собственника реализовать дизайн-проект с нуля в соответствии с личными требованиями и современными стандартами. В квартире уже установлены пластиковые окна, обеспечивающие эффективную тепло- и шумоизоляцию, и функционирует газовая колонка для бесперебойного горячего водоснабжения сделанемонт в ванной . кафель без сколов и трещин.. Планировка включает раздельный санузел, и раздельные комнаты что повышает бытовой комфорт для жильцов. Установлены индивидуальные счетчики учета холодной воды и газа, позволяющие рационально контролировать коммунальные расходы. Ключевым преимуществом является локация: в шаговой доступности расположены детский сад, школа, поликлиника, супермаркеты и остановки общественного транспорта, что формирует полноценную среду для повседневной жизни. Прочный кирпичный дом и удачное расположение квартиры на первом этаже делают этот объект практичным решением как для собственного проживания, так и для последующей сдачи в аренду. Код пользователя: 29884Номер в базе:

Читать полностью

    Для того, чтобы купить двухкомнатную квартиру по адресу: Сокол, ул. Гражданская, 4, позвоните по телефону +7 (911) 046-16-04. Торопитесь! Объявление №30093110841 о продаже двухкомнатной квартиры опубликовано 29 января 2026.

    Позвонить Написать
    1 790 000 Р23 640 $ или 19 790
    Агент
    +7 (911) 046-16-04
    Начать чат с агентом
    Похожие предложения
    2-комнатная квартира: Сокол, Гражданская улица, 4 (46 м) - Фото 1
    2-комнатная квартира: Сокол, Гражданская улица, 4 (46 м) - Фото 2
    2-комнатная квартира, общая площадь 46м², жилая 35м², кухня 6м²

    Продается двухкомнатная квартира площадью 46 кв. м. на первом этаже кирпичного дома 1974 года постройки. Объект предлагается без отделки, что представляет собой чистую возможность для нового собственника реализовать дизайн-проект с нуля в соответствии...
    • 46 м²
    • 2-ком
    • 1/5 эт.
    1 900 000 Р
    Агент
    +7 (981) Показать номер
    Посмотреть контакты
    2-к кв. Вологодская область, Сокол Гражданская ул., 1 (36.0 м) - Фото 1
    2-к кв. Вологодская область, Сокол Гражданская ул., 1 (36.0 м) - Фото 2
    2-комнатная квартира, общая площадь 36м², жилая 17м², кухня 7м²

    id:3880. Представляем вашему вниманию уютную двухкомнатную квартиру во вторичном жилом фонде. Этот объект идеально подойдёт для тех, кто ценит комфорт и практичность.Продается 2-комнатная квартира на 5 этаже пятиэтажного панельного дома в районе Печаткино....
    • 36 м²
    • 2-ком
    • 5/5 эт.
    • панельный
    1 870 000 Р
    Агент
    +7 (911) Показать номер
    Посмотреть контакты
    2-к кв. Вологодская область, Сокол ул. Суворова, 17 (31.9 м) - Фото 1
    2-к кв. Вологодская область, Сокол ул. Суворова, 17 (31.9 м) - Фото 2
    2-комнатная квартира, общая площадь 31м², жилая 20м², кухня 5м²

    id:4198. Вы в поисках 1-комнатной квартиры в Центре города? У нас есть для Вас отличный вариант Продается 2-комнатная квартира на 1 этаже двухэтажного кирпичного дома в центре города. Общая площадь - 31,9 кв.м., площадь кухни - 5 кв.м.- Квартира благоустроенная,...
    • 31 м²
    • 2-ком
    • 1/2 эт.
    • кирпичный
    1 860 000 Р
    Агент
    +7 (981) Показать номер
    Посмотреть контакты
    4-к кв. Вологодская область, Сокол ул. Шатенево, 73 (57.8 м) - Фото 1
    4-к кв. Вологодская область, Сокол ул. Шатенево, 73 (57.8 м) - Фото 2
    4-комнатная квартира, общая площадь 57м², жилая 45м², кухня 6м²

    id:4294. Обратите внимание квартира для семьи с детьми Продается 4-комнатная квартира на 2 этаже пятиэтажного панельного дома в районе Трубки. Общая площадь - 57,8 кв.м., площадь кухни - 6 кв.м.Частично сделан косметический ремонт. Комнаты смежно-изолированные.Окна...
    • 57 м²
    • 4-ком
    • 2/5 эт.
    • панельный
    1 870 000 Р
    Агент
    +7 (981) Показать номер
    Посмотреть контакты
    1-к кв. Вологодская область, Сокол Советская ул., 69 (32.0 м) - Фото 1
    1-к кв. Вологодская область, Сокол Советская ул., 69 (32.0 м) - Фото 2
    1-комнатная квартира, общая площадь 32м², жилая 18м², кухня 7м²

    id:4386. Надоело снимать жилье? Пора приобрести свое.Продается 1-комнатная квартира на 1этаже пятиэтажного кирпичного дома в Центре города. Общая площадь - 32,4 кв.м., кухни - 7 кв.м.- Благоустроенный дом, отопление центральное, горячее и холодное водоснабжение,...
    • 32 м²
    • 1-ком
    • 1/5 эт.
    • кирпичный
    1 860 000 Р
    Агент
    +7 (911) Показать номер
    Посмотреть контакты

    Не нашли подходящего объявления?

    Оставьте заявку, и наши риэлторы подберут квартиру в районе Сокола

    (0)