Реализация объекта недвижимости приостановлена

Информация о квартире

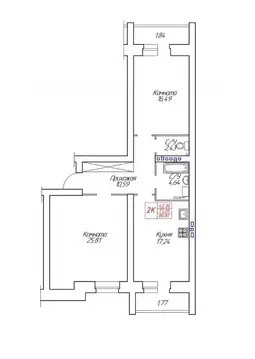
80.0 м2
Площадь
3
Комнаты
10
Этаж
14
Этажность

Дополнительная информация

Тип дома
кирпичный
Развернуть

3-к кв. Вологодская область, Вологда Белозерское ш., 10А (80.29 м)

Продаётся 3-комнатная квартира в строящемся доме (Дом 6), срок сдачи: II-кв. 2026, общей площадью 80.29 кв.м., на 10 этаже. Расположение, транспортная доступность Жилой комплекс Белозерский находится в северо-западной части Вологды, на Белозерском шоссе, в пяти минутах езды от центра города. Близость главных транспортных развязок обеспечивает удобный проезд в любой район Вологды и к федеральным магистралям: трассе М8 Холмогоры Москва - Архангельск (15 минут), А114 Вологда - Новая Ладога (15 минут) и А119 Вологда - Медвежьегорск (10 минут). Непосредственно у границ комплекса расположена остановка автобусов и маршрутных такси, на которых можно за 7-10 минут добраться в центр города, за 15 минут - до железнодорожного или автовокзала. Инфраструктура Собственная инфраструктура жилого квартала Белозерский включает детский сад, торгово-развлекательный центр, стадион с беговыми дорожками, коммерческие помещения на первых и цокольных этажах, спортивные и детские площадки, зоны отдыха во дворах, закрытые автостоянки боксового типа и наземные парковки. Жителям также доступна действующая инфраструктура микрорайона. Рядом с комплексом находятся: общеобразовательная школа 31, детский сад 41 Ветерок , филиал городской поликлиники, супермаркет Пятерочка , магазин Бристоль . В шаговой доступности расположены оптовые базы, различные магазины, кафе, ресторан Генацвале , банный комплекс Paradise, а также берег реки Вологда и парк Мира - одно из любимых мест отдыха вологжан. Надежность застройщика Застройщик жилого квартала Белозерский - ООО Профит , основанное в 2012 году в Вологде. Компания имеет опыт в строительной отрасли с 1986 года. Первый самостоятельный девелоперский проект в жилищном строительстве - 3-этажный дом на 52 квартиры на Воркутинской улице, который был успешно введен в эксплуатацию в марте 2014 года. Предприятие работает без привлечения сторонних подрядчиков, обеспечивая конкурентоспособный уровень цен на жилье. Проект комплексной застройки Белозерский стартовал в 2014 году: положительное заключение экспертизы выдано в апреле, соглашение о переуступке прав и обязанностей по договору аренды земельных участков подписано в октябре, разрешение на строительство первого корпуса (жилой дом 2) выдано в декабре. Секции 1 и 2 дома 2 были введены в эксплуатацию в апреле 2017 года, секции 3 и 4 - в апреле 2018 года. Покупателям квартир предложена льготная ипотека от ряда банков, генеральный партнер строительства - Сбербанк. Архитектура Жилой квартал Белозерский состоит из девяти кирпичных домов переменной этажности, выполненных в едином архитектурном стиле, и здания торгово-развлекательного центра. Наружные стены домов (толщиной 810 мм) и внутренние стены (380-640 мм) сделаны из силикатного кирпича, перегородки - из газобетонных блоков. В проекте представлены различные планировки, классические и европейские, от студий 29,3 кв. м до двухуровневых пятикомнатных квартир 164 кв. м. На первых этажах размещены нежилые помещения под

Читать полностью

    Реализация объекта недвижимости приостановлена

    Не нашли подходящего объявления?

    Оставьте заявку, и наши риэлторы подберут квартиру в новостройке в районе Вологды

    (0)