Реализация объекта недвижимости приостановлена

Информация о квартире

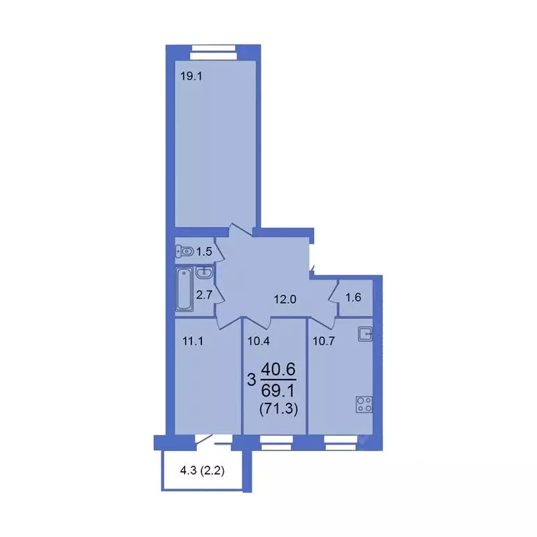
71.0 м2
Площадь
3
Комнаты
5
Этаж
10
Этажность

Дополнительная информация

Тип дома
кирпичный
Развернуть

3-к кв. Вологодская область, Вологда Молодежная ул., 22 (71.3 м)

Продаётся 3-комнатная квартира в строящемся доме (Дом 45 (секция 1,2,3)), срок сдачи: III-кв. 2026, общей площадью 71.3 кв.м., на 5 этаже.

Читать полностью

    Реализация объекта недвижимости приостановлена

    Не нашли подходящего объявления?

    Оставьте заявку, и наши риэлторы подберут квартиру в новостройке в районе Вологды

    (0)