Реализация объекта недвижимости приостановлена

Информация о квартире

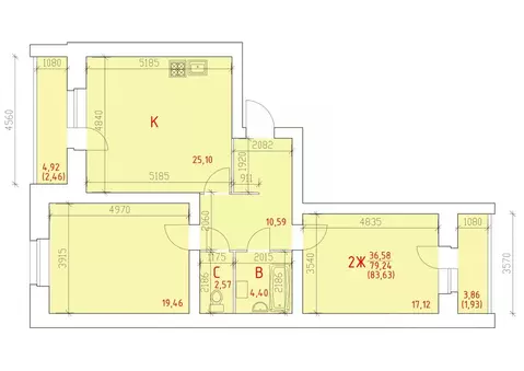
74.0 м2
Площадь
2
Комнаты
6
Этаж
16
Этажность
Развернуть

2-комнатная квартира: Вологда, Кирпичная улица, 23 (74.5 м)

Квартира №16 в жилом комплекс «МОНЕ .Адрес: г. Вологда, ул. КирпичнаяСрок сдачи: 2 квартал 2026 годаСейчас есть возможность выполнить перепланировку на этапе строительства до тех пор, пока не проведены работы по устройству перегородок в квартире.Преимущества:• Развитая инфраструктура: рядом детские сады, школы, кафе, рестораны, супермаркеты, фитнес-центры.• Закрытая территория• Современные технологии: видеонаблюдение, IP-домофоны, качественная отделка.• Удобные планировки: просторные кухни-гостиные, мастер-спальни, возможность перепланировки.• Комфорт: панорамное остекление, энергосберегающие окна, 1 этаж теплые полы.• Парковка: индивидуальные гаражи, наземная парковка.• На 2 этаже благоустроенная территория для времяпрепровождения вас и ваших детей.О застройщике «Черри Дом .Опыт: успешные проекты в Вологде с 2008 года.Надежность и безопасность: строительство по ФЗ-214. Сделки через эскроу-счета в ПАО Сбербанк. Денежные средства находятся на вашем счете и переводятся Застройщику только после получения им разрешения на ввод дома в эксплуатацию.Покупка: все виды ипотеки, наличные, материнский капитал, рассрочка от застройщика.Просим вас предварительно договориться о просмотре дома с менеджером и запланировать визит в офис – мы ценим ваше время.Офис: г. Вологда, ул. Республиканская 14, корпус 1Срок сдачи 2026 г.Кирпичная улица

Читать полностью

    Реализация объекта недвижимости приостановлена

    Не нашли подходящего объявления?

    Оставьте заявку, и наши риэлторы подберут квартиру в новостройке в районе Вологды

    (0)