Реализация объекта недвижимости приостановлена

Информация о квартире

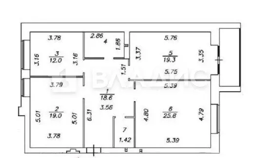
113.0 м2
Площадь
50.0 м2
Жилая
25.0 м2
Кухня
3
Комнаты
5
Этаж
5
Этажность
Развернуть

3-комнатная квартира: Вологда, улица Карла Маркса, 19 (113.2 м)

Код объекта: 877561. Пятиэтажный дом комфорт-класса из керамического кирпича, с индивидуальным газовым отоплением.Расположен между улицами Карла Маркса и Заречная.Большая кухня-гостиная..Лоджия с витражным остеклением.Материал стен керамический кирпич.Отделка входных групп и коридоров будет выполнена по дизайнерскому проекту.Закрытая территория, парковка и детские площадки.

Читать полностью

    Реализация объекта недвижимости приостановлена

    Не нашли подходящего объявления?

    Оставьте заявку, и наши риэлторы подберут квартиру в районе Вологды

    (0)