5 570 000 Р 68 470 $ или 58 840

Информация о квартире

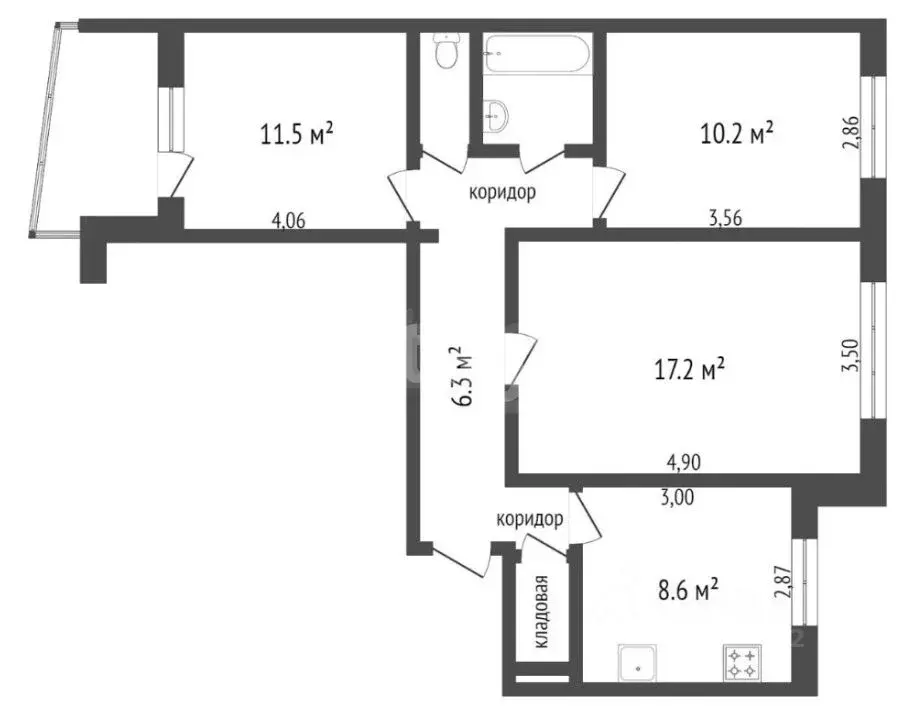
78 м2
Площадь
10 м2
Кухня
3
Комнаты
12
Этаж
16
Этажность

Дополнительная информация

Тип дома
кирпичный
Развернуть
Агент
+7 (981) 430-10-59
Начать чат с агентом

3-к кв. Вологодская область, Вологда ул. Гагарина, 80Ак2 (78.5 м)

Продается великолепная трехкомнатная квартира, идеально подходящая для большой и дружной семьи Просторная прихожая площадью 18 м встречает вас, а уютная кухня в 10,4 м станет настоящим центром семейных встреч и кулинарных экспериментов. Две спальни (10 и 15,3 м) обеспечат комфортный отдых, а светлая гостиная площадью 20,3 м подарит вам возможность проводить время в кругу близких, наслаждаясь общением и отдыхом.Квартира расположена на 12 этаже кирпичного дома с толстыми стенами, что гарантирует вам тишину и уединение. Отличная теплоизоляция позволит сохранять тепло зимой и прохладу летом, создавая комфортные условия в любое время года. Дружелюбные соседи добавят уюта вашему новому дому.Район, в котором находится квартира, обладает развитой инфраструктурой, что делает его идеальным для жизни. В непосредственной близости находятся детские сады, включая филиал Детского сада 3 Воробушек (в соседнем доме), а так же Ручеёк , Белочка и Земляничка . Для школьников доступны три среднеобразовательные школы: 2, 22 и 26, а также Вологодский колледж права и технологии. Не забудьте про удобства: рядом расположены поликлиника, супермаркеты, торговые центры, бассейн и заправка. Удобная транспортная доступность позволит вам без труда добраться в любую точку города. Не упустите шанс стать счастливым обладателем этой замечательной квартиры, где каждый член семьи найдет свое место для отдыха и радости Звоните прямо сейчас, чтобы записаться на просмотр и сделать первый шаг к вашему новому дому Код пользователя: 143132Номер в базе: 2501863

Читать полностью

    Для того, чтобы купить трехкомнатную квартиру по адресу: Вологда, ул. Гагарина, 80Ак2, позвоните по телефону +7 (981) 430-10-59. Торопитесь! Объявление №30091051300 о продаже трехкомнатной квартиры опубликовано 14 октября 2025.

    Позвонить Написать
    5 570 000 Р68 470 $ или 58 840
    Агент
    +7 (981) 430-10-59
    Начать чат с агентом
    Похожие предложения
    3-к кв. Вологодская область, Вологда ул. Гагарина, 80Ак2 (71.3 м) - Фото 1
    3-к кв. Вологодская область, Вологда ул. Гагарина, 80Ак2 (71.3 м) - Фото 2
    3-комнатная квартира, общая площадь 71м², жилая 45м², кухня 9м²

    Продается просторная трехкомнатная квартира в новом доме по адресу: Вологда, улица Гагарина, 80Ак2. Общая площадь квартиры составляет 71.3 кв. м, из которых 45.0 кв. м — жилая площадь, а кухня занимает 9.5 кв. м. Квартира расположена на 9 этаже 16-этажного...
    • 71 м²
    • 3-ком
    • 9/16 эт.
    5 600 000 Р
    Агент
    +7 (911) Показать номер
    Посмотреть контакты
    2-к кв. Вологодская область, Вологда ул. Гагарина, 80Ак4 (70.2 м) - Фото 1
    2-к кв. Вологодская область, Вологда ул. Гагарина, 80Ак4 (70.2 м) - Фото 2
    2-комнатная квартира, общая площадь 70м², жилая 39м², кухня 10м²

    В пpoдаже просторная 2-х комнатная квартира общей площадью 70,2 кв.м.Плюсы квартиры: Комнаты раздельные, площадью 20,1 и 19,4 кв.м Кухня квадратной формы-10,4 кв.м Гардеробная со встроенной системой для удобного хранения Все стены в квартире капитальные,...
    • 70 м²
    • 2-ком
    • 1/14 эт.
    5 690 000 Р
    Агент
    +7 (911) Показать номер
    Посмотреть контакты
    2-к кв. Вологодская область, Вологда ул. Гагарина, 2Ак7 (54.5 м) - Фото 1
    2-к кв. Вологодская область, Вологда ул. Гагарина, 2Ак7 (54.5 м) - Фото 2
    2-комнатная квартира, общая площадь 54м², кухня 8м²

    Продаем классную квартиру. Больше подойдет молодой современной семье. Квартира с потенциалом - светло, высокие разноуровневые потолки, в некоторых зонах их высота достигает 5 метров. В одной из комнат - приятный бонус в виде антресольной зоны - 1,3 м...
    • 54 м²
    • 2-ком
    • 5/5 эт.
    • кирпичный
    5 550 000 Р
    Агент
    +7 (981) Показать номер
    Посмотреть контакты
    3-к кв. Вологодская область, Вологда ул. Гагарина, 71А (58.7 м) - Фото 1
    3-к кв. Вологодская область, Вологда ул. Гагарина, 71А (58.7 м) - Фото 2
    3-комнатная квартира, общая площадь 58м², кухня 17м²

    Продается уютная и светлая квартира с качественным ремонтом, выполненным с любовью и вниманием к деталям. В квартире полностью заменены электропроводка, системы водоснабжения, канализации и отопления, что гарантирует вам комфорт и безопасность на долгие...
    • 58 м²
    • 3-ком
    • 5/5 эт.
    • кирпичный
    5 700 000 Р
    Агент
    +7 (981) Показать номер
    Посмотреть контакты
    1-к кв. Вологодская область, Вологда ул. Гагарина, 3 (49.5 м) - Фото 1
    1-к кв. Вологодская область, Вологда ул. Гагарина, 3 (49.5 м) - Фото 2
    1-комнатная квартира, общая площадь 49м², жилая 23м², кухня 11м²

    Продам однокомнатную квартиру на комфортном пятом этаже кирпичного дома. В квартире сделан косметический ремонт, без особых вложений заехать и жить можно. Пластиковые окна выходят во двор. Выход на застекленную лоджию из комнаты. Санузел совмещен. При...
    • 49 м²
    • 1-ком
    • 5/10 эт.
    • кирпичный
    5 500 000 Р
    Агент
    +7 (981) Показать номер
    Посмотреть контакты

    Не нашли подходящего объявления?

    Оставьте заявку, и наши риэлторы подберут квартиру в районе Вологды

    (0)