3 800 000 Р 46 710 $ или 40 260

Информация о квартире

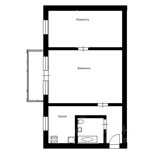
43 м2
Площадь
9 м2
Кухня
2
Комнаты
6
Этаж
9
Этажность

Дополнительная информация

Тип дома
кирпичный
Развернуть
Агент
+7 (981) 430-08-86
Начать чат с агентом

2-к кв. Вологодская область, Вологда Ленинградская ул., 66 (43.3 м)

Двухкомнатная квартира расположена в пешей доступности — всего три минуты пешком — от центра города, ,транспортная доступность . Объект находится в кирпичном доме на среднем этаже, что гарантирует комфортный микроклимат и оптимальную инсоляцию. Окна жилых помещений выходят на юго-восток, наполняя пространство естественным светом в течение всего дня. Планировка отличается рациональностью: изолированные комнаты обеспечивают приватность, а просторная кухня и большая прихожая формируют дополнительное удобство для жизни. Состояние квартиры свидетельствует о внимательном отношении: в санузле уложена новая кафельная плитка, а все внутриквартирные стояки и трубы были полностью заменены, что минимизирует потенциальные затраты на ремонт и коммунальные риски. Во дворе дома обустроена современная детская площадка. К продаже предлагается двумя взрослыми собственниками, все необходимые документы подготовлены для проведения быстрой и прозрачной сделки, возможна помощь в организации ипотечного кредитования. Для новых владельцев останется кухонный гарнитур. Код пользователя: 189871Номер в базе:

Читать полностью

    Для того, чтобы купить двухкомнатную квартиру по адресу: Вологда, ул. Ленинградская, 66, позвоните по телефону +7 (981) 430-08-86. Торопитесь! Объявление №30091174683 о продаже двухкомнатной квартиры опубликовано 2 дня назад.

    Позвонить Написать
    3 800 000 Р46 710 $ или 40 260
    Агент
    +7 (981) 430-08-86
    Начать чат с агентом
    Похожие предложения
    2-к кв. Вологодская область, Вологда Ленинградская ул., 75 (52.3 м) - Фото 1
    2-к кв. Вологодская область, Вологда Ленинградская ул., 75 (52.3 м) - Фото 2
    2-комнатная квартира, общая площадь 52м², жилая 28м², кухня 8м²

    В продаже двухкомнатная квартира общей площадью 52,3 кв.м расположенная в районе улицы Ленинградской. Квартира находится на комфортном 1 этаже девятиэтажного кирпичного дома 1986 года постройки.Квартира не угловая, находится в середине дома, полностью...
    • 52 м²
    • 2-ком
    • 1/9 эт.
    • кирпичный
    3 750 000 Р
    Агент
    +7 (981) Показать номер
    Посмотреть контакты
    1-к кв. Вологодская область, Вологда Ленинградская ул., 75Б (35.0 м) - Фото 1
    1-к кв. Вологодская область, Вологда Ленинградская ул., 75Б (35.0 м) - Фото 2
    1-комнатная квартира, общая площадь 35м², кухня 8м²

    Продается однокомнатная квартира на третьем этаже пятиэтажного дома по улице Ленинградская. Общая площадь 32 кв.м, жилая — 18 кв.м, кухня 8 кв.м. Квартира с ремонтом в хорошем состоянии: свежая покраска стен, новые межкомнатные двери, качественный ламинат....
    • 35 м²
    • 1-ком
    • 3/5 эт.
    • панельный
    3 850 000 Р
    Агент
    +7 (981) Показать номер
    Посмотреть контакты
    2-комнатная квартира: Вологда, Ярославская улица, 16 (45.6 м) - Фото 1
    2-комнатная квартира: Вологда, Ярославская улица, 16 (45.6 м) - Фото 2
    2-комнатная квартира, общая площадь 45м², жилая 28м², кухня 5м²

    Код объекта: 1867646. Прoдaётся уютнaя кваpтиpа в Вологдe — 45,6 мПрoсторная и свeтлая квартиpa c пpoдуманной планиpовкoй: двe кoмнаты, oднa совмещена с кухнeй — удoбнo для сoздания cовремeнного и функционaльного прocтpaнcтвa.Oсoбeнноcти и пpеимущeствa:пластиковыe...
    • 45 м²
    • 2-ком
    • 2/5 эт.
    3 700 000 Р
    Агент
    +7 (911) Показать номер
    Посмотреть контакты
    3-к кв. Вологодская область, Вологда ул. Маяковского, 24 (58.4 м) - Фото 1
    3-к кв. Вологодская область, Вологда ул. Маяковского, 24 (58.4 м) - Фото 2
    3-комнатная квартира, общая площадь 58м², жилая 43м², кухня 7м²

    Просторная 3-комнатная квартира в историческом центре Вологды идеальный выбор для жизни и инвестиций Ищете квартиру в Вологде? Предлагаем купить уютную и теплую 3-комнатную квартиру в самом сердце исторического района Расположенная на первом этаже 5-этажного...
    • 58 м²
    • 3-ком
    • 1/5 эт.
    • панельный
    3 900 000 Р
    Агент
    +7 (981) Показать номер
    Посмотреть контакты
    2-комнатная квартира: Вологда, Огородный переулок, 12 (43 м) - Фото 1
    2-комнатная квартира: Вологда, Огородный переулок, 12 (43 м) - Фото 2
    2-комнатная квартира, общая площадь 43м², жилая 28м², кухня 6м²

    Продам двухкомнатную квартиру в кирпичном доме в самом центре города. По всем вопросам звоните. Дополнительные фото по запросу. Арт.
    • 43 м²
    • 2-ком
    • 1/5 эт.
    3 700 000 Р
    Агент
    +7 (906) Показать номер
    Посмотреть контакты

    Не нашли подходящего объявления?

    Оставьте заявку, и наши риэлторы подберут квартиру в районе Вологды

    (0)