3 200 000 Р 40 890 $ или 35 250

Информация о квартире

30 м2
Площадь
18 м2
Жилая
8 м2
Кухня
1
Комната
3
Этаж
5
Этажность
Развернуть
Агент
+7 (981) 449-68-77
Начать чат с агентом

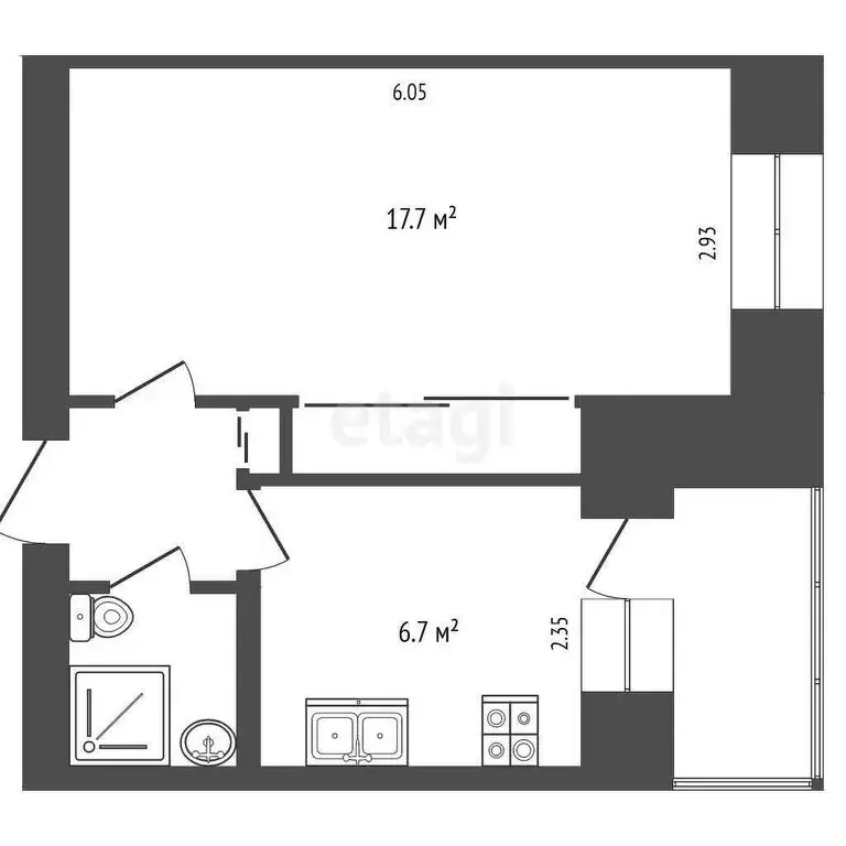
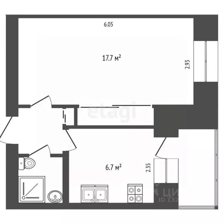
1-комнатная квартира: Вологда, Ленинградская улица, 74 (30.5 м)

Продается светлая и уютная квартира общей площадью 30,5 кв.м. на третьем этаже кирпичного дома. Ключевым преимуществом объекта является продуманная и сбалансированная планировка: просторная изолированная комната площадью 17.7 кв.м. и отдельная кухня в 6.7 кв.м. правильной формы, что создает комфортные условия для проживания. Из кухни есть выход на большую застекленную лоджию. Все окна и лоджия выполнены в современных пластиковых конструкциях, обеспечивающих хорошую тепло- и шумоизоляцию. Окна квартиры выходят в тихий двор на западную сторону, солнечный свет проникает в помещения преимущественно во второй половине дня.Расположение объекта отличается высокой транспортной доступностью и развитой инфраструктурой: в шаговой доступности, всего в минуте ходьбы, находится остановка общественного транспорта, а также магазины, школы и детские сады. Дом характеризуется спокойной атмосферой и добрососедскими отношениями. Квартира находится в собственности одного человека, обременений в виде детских долей нет. Наличие действующей ипотеки не является препятствием для сделки, все процедуры по ее закрытию могут быть организованы в кратчайшие сроки. Это предложение представляет собой оптимальный вариант для тех, кто ищет практичное жилье для комфортной жизни без необходимости проведения ремонта. Код пользователя: 194473Номер в базе:

Читать полностью

    Для того, чтобы купить однокомнатную квартиру по адресу: Вологда, ул. Ленинградская, 74, позвоните по телефону +7 (981) 449-68-77. Торопитесь! Объявление №30092026566 о продаже однокомнатной квартиры опубликовано 25 ноября 2025.

    Позвонить Написать
    3 200 000 Р40 890 $ или 35 250
    Агент
    +7 (981) 449-68-77
    Начать чат с агентом
    Похожие предложения
    1-комнатная квартира: Вологда, Ленинградская улица, 74 (30.5 м) - Фото 1
    1-комнатная квартира: Вологда, Ленинградская улица, 74 (30.5 м) - Фото 2
    1-комнатная квартира, общая площадь 30м², жилая 17м², кухня 6м²

    Код объекта: 1948901.В продаже уютная 1 комнатная квартира.Кирпичный дом. Комфортный 3 этажПросторная комната 17,7 м правильной формыЕсть большая вместительная лоджия с выходом из кухни. Окна и лоджия в пластике. Окна выходят во двор, западная сторона....
    • 30 м²
    • 1-ком
    • 3/5 эт.
    3 100 000 Р
    Агент
    +7 (911) Показать номер
    Посмотреть контакты
    1-к кв. Вологодская область, Вологда Ленинградская ул., 74 (30.5 м) - Фото 1
    1-к кв. Вологодская область, Вологда Ленинградская ул., 74 (30.5 м) - Фото 2
    1-комнатная квартира, общая площадь 30м², кухня 8м²

    Продается светлая и уютная квартира общей площадью 30,5 кв.м. на третьем этаже кирпичного дома. Ключевым преимуществом объекта является продуманная и сбалансированная планировка: просторная изолированная комната площадью 17.7 кв.м. и отдельная кухня в...
    • 30 м²
    • 1-ком
    • 3/5 эт.
    3 200 000 Р
    Агент
    +7 (911) Показать номер
    Посмотреть контакты
    1-к кв. Вологодская область, Вологда Ленинградская ул., 64 (36.0 м) - Фото 1
    1-к кв. Вологодская область, Вологда Ленинградская ул., 64 (36.0 м) - Фото 2
    1-комнатная квартира, общая площадь 36м², жилая 18м², кухня 10м²

    Арт.Продается 1комн квартира. Чистая, теплая, уютная. Располагается в середине дома. Кухня большая - можно использовать, как вторую комнату. Новый кухонный гарнитур, новая мойка из искусственного камня, пол - керамогранит. Вся сантехника новая. Комната...
    • 36 м²
    • 1-ком
    • 2/9 эт.
    • кирпичный
    3 200 000 Р
    Агент
    +7 (911) Показать номер
    Посмотреть контакты
    1-к кв. Вологодская область, Вологда Ленинградская ул., 66 (35.7 м) - Фото 1
    1-к кв. Вологодская область, Вологда Ленинградская ул., 66 (35.7 м) - Фото 2
    1-комнатная квартира, общая площадь 35м², кухня 8м²

    Продается великолепная и просторная 1-комнатная квартира в кирпичном доме, который обеспечит вам уют и комфорт на долгие годы Эта квартира станет идеальным местом для жизни, благодаря своей продуманной планировке, которую вы можете увидеть на фото в...
    • 35 м²
    • 1-ком
    • 9/9 эт.
    • кирпичный
    3 100 000 Р
    Агент
    +7 (981) Показать номер
    Посмотреть контакты
    1-к кв. Вологодская область, Вологда Ленинградская ул., 78 (30.0 м) - Фото 1
    1-к кв. Вологодская область, Вологда Ленинградская ул., 78 (30.0 м) - Фото 2
    1-комнатная квартира, общая площадь 30м², кухня 7м²

    Продаём однокомнатную квартиру в развитом районе города по улице Ленинградская дом 78.Дом построен в 1993 году из кирпича, что обеспечивает хорошую теплопроводность, зимой в квартире тепло, а летом прохладно. Общие места пользования содержатся в чистоте...
    • 30 м²
    • 1-ком
    • 2/9 эт.
    • кирпичный
    3 180 000 Р
    Агент
    +7 (981) Показать номер
    Посмотреть контакты

    Не нашли подходящего объявления?

    Оставьте заявку, и наши риэлторы подберут квартиру в районе Вологды

    (0)