4 600 000 Р 59 010 $ или 50 780

Информация о квартире

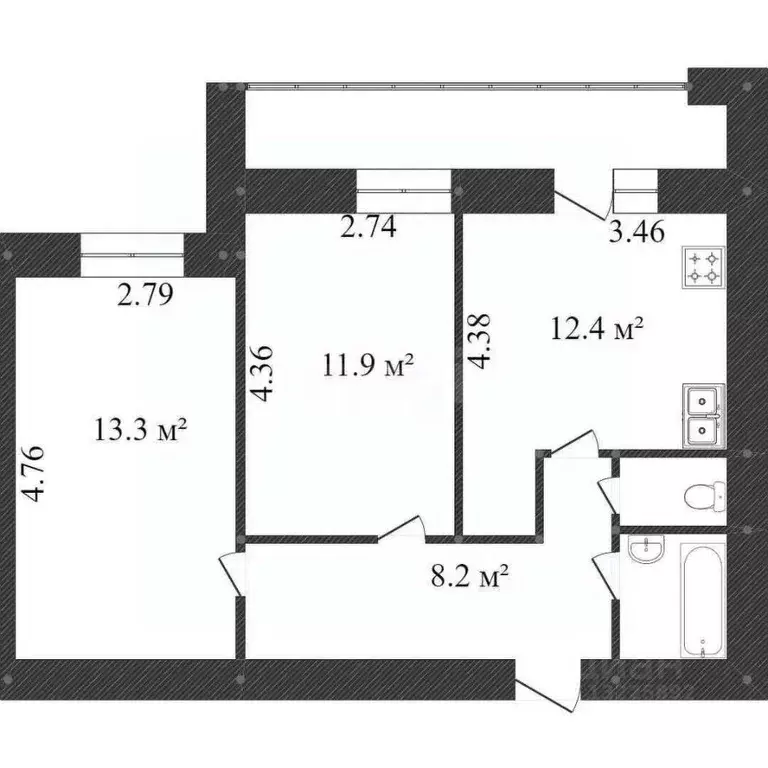
49 м2
Площадь
36 м2
Жилая
8 м2
Кухня
2
Комнаты
3
Этаж
9
Этажность
Развернуть
Агент
+7 (906) 293-12-49
Начать чат с агентом

2-комнатная квартира: Вологда, Новгородская улица, 9 (49.4 м)

Квартира на третьем этаже девятиэтажного кирпичного дома 2005 года постройки предлагает отличную возможность для создания семейного гнезда в устоявшемся и тихом районе. Объект расположен в зоне развитой повседневной инфраструктуры: в пешей доступности находятся детский сад, школа, поликлиника «Говорово , а также магазины, включая супермаркет «Лента . При этом двор сохраняет спокойную атмосферу, оборудован новой детской площадкой и предоставляет достаточное количество парковочных мест. Транспортная доступность обеспечена, район хорошо обжит. Планировка квартиры практична и функциональна: все комнаты изолированы, кухня просторная, что является несомненным преимуществом для жизни. На этаже обустроен общий тамбур на две квартиры, где можно безопасно хранить коляску или велосипед, в подъезде — пассажирский лифт и поддерживается чистота. Квартира продается в состоянии, требующем ремонта, что позволяет новым владельцам реализовать собственные дизайнерские идеи без необходимости демонтажа; вся существующая мебель и техника остаются. Для покупателей доступна организация ипотечного кредитования и полное юридическое сопровождение сделки, обеспечивающее безопасность и прозрачность приобретения. Код пользователя: 109182Номер в базе:

Читать полностью

    Для того, чтобы купить двухкомнатную квартиру по адресу: Вологда, ул. Новгородская, 9, позвоните по телефону +7 (906) 293-12-49. Торопитесь! Объявление №30092150062 о продаже двухкомнатной квартиры опубликовано 01 декабря 2025.

    Позвонить Написать
    4 600 000 Р59 010 $ или 50 780
    Агент
    +7 (906) 293-12-49
    Начать чат с агентом
    Похожие предложения
    2-к кв. Вологодская область, Вологда Новгородская ул., 9 (49.4 м) - Фото 1
    2-к кв. Вологодская область, Вологда Новгородская ул., 9 (49.4 м) - Фото 2
    2-комнатная квартира, общая площадь 49м², кухня 8м²

    Квартира на третьем этаже девятиэтажного кирпичного дома 2005 года постройки предлагает отличную возможность для создания семейного гнезда в устоявшемся и тихом районе. Объект расположен в зоне развитой повседневной инфраструктуры: в пешей доступности...
    • 49 м²
    • 2-ком
    • 3/9 эт.
    • кирпичный
    4 600 000 Р
    Агент
    +7 (981) Показать номер
    Посмотреть контакты
    2-комнатная квартира: Вологда, Новгородская улица, 9 (49.4 м) - Фото 1
    2-комнатная квартира: Вологда, Новгородская улица, 9 (49.4 м) - Фото 2
    2-комнатная квартира, общая площадь 49м², жилая 36м², кухня 8м²

    Квартира на третьем этаже девятиэтажного кирпичного дома 2005 года постройки предлагает отличную возможность для создания семейного гнезда в устоявшемся и тихом районе. Объект расположен в зоне развитой повседневной инфраструктуры: в пешей доступности...
    • 49 м²
    • 2-ком
    • 3/9 эт.
    4 600 000 Р
    Агент
    +7 (911) Показать номер
    Посмотреть контакты
    1-к кв. Вологодская область, Вологда Новгородская ул., 42к1 (31.6 м) - Фото 1
    1-к кв. Вологодская область, Вологда Новгородская ул., 42к1 (31.6 м) - Фото 2
    1-комнатная квартира, общая площадь 31м², кухня 4м²

    Предлагается к продаже однокомнатная квартира в новом кирпичном доме, полностью готовая к проживанию. Объект характеризуется качественным евроремонтом и оснащен всей необходимой новой мебелью и техникой, включая кухонный гарнитур, плиту, холодильник,...
    • 31 м²
    • 1-ком
    • 2/10 эт.
    • кирпичный
    4 600 000 Р
    Агент
    +7 (981) Показать номер
    Посмотреть контакты
    1-к кв. Вологодская область, Вологда Новгородская ул., 4А (33.8 м) - Фото 1
    1-к кв. Вологодская область, Вологда Новгородская ул., 4А (33.8 м) - Фото 2
    1-комнатная квартира, общая площадь 33м², жилая 15м², кухня 9м²

    Квартира расположена в одном из самых восстребованых районов города( Говорово). В шаговой доступности магазины, ДК ПЗ,фитнес клуб,кафе,школы,детские сады,остановки общественного транспорта,парк,во дворе оборудованная детская площадка.Квартира в чистой...
    • 33 м²
    • 1-ком
    • 11/13 эт.
    • кирпичный
    4 500 000 Р
    Агент
    +7 (911) Показать номер
    Посмотреть контакты
    2-комнатная квартира: Вологда, улица Горького, 85 (46 м) - Фото 1
    2-комнатная квартира: Вологда, улица Горького, 85 (46 м) - Фото 2
    2-комнатная квартира, общая площадь 46м², жилая 31м², кухня 5м²

    Продам двухкомнатную квартиру на комфортном третьем этаже кирпичного дома. В квартире сделан современный дорогой ремонт, без дополнительных вложений можно заезжать и жить. Комнаты изолированные, выходят на разные стороны. Окна пластиковые, выход на балкон...
    • 46 м²
    • 2-ком
    • 3/5 эт.
    4 500 000 Р
    Агент
    +7 (905) Показать номер
    Посмотреть контакты

    Не нашли подходящего объявления?

    Оставьте заявку, и наши риэлторы подберут квартиру в районе Вологды

    (0)