16 900 000 Р 220 500 $ или 187 400

Информация о квартире

170 м2
Площадь
26 м2
Кухня
4
Комнаты
2
Этаж
2
Этажность

Дополнительная информация

Тип дома
кирпичный
Развернуть
Агент
+7 (981) 500-76-04
Начать чат с агентом

4-к кв. Вологодская область, Вологда Кривой пер., 6 (170.0 м)

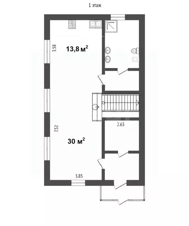
Продаётся просторная и светлая квартира в двухквартирном жилом доме, находящемся на участке в 10,5 соток. Удобная планировка позволяет вам воплотить в жизнь свои идеи или сделать перепланировку по вашему желанию. На первом этаже расположены санузел, котельня, кухня и зал. Из кухни есть отдельный выход в сад. Полы с подогревом обеспечивают комфорт. На втором этаже находятся санузел и две спальни. Большая спальня имеет выход на балкон и в гардеробную, отдельную комнату с окном.Мансардный этаж представляет собой помещение площадью 70 кв.м, которое разделено на две комнаты. Отопление осуществляется газовым котлом, что позволяет снизить коммунальные платежи. Водоснабжение и канализация центральные. Материал стен - пеноблоки, а кровля и стены дополнительно утеплены. Территория дома огорожена забором, парковка на территории доступна. В собственности имеется 5,5 соток земли в черте города. В саду выращены туи, вишня, смородина, крыжовник и малина. Из сада можно попасть в небольшой домик, который можно использовать как дополнительное помещение, например, гараж или банный комплекс. Дом находится в исторической части города, вдали от шума и суеты. В непосредственной близости находятся детский сад (2 минуты пешком) и школа. Остановка общественного транспорта в 400 метрах от дома, а до центра города всего 5 минут пешком. Рядом отсутствуют шум от дорог и большие многоэтажные здания. Местоположение дома идеально - прекрасный тихий уголок почти в самом центре города. Код пользователя: 28295Номер в базе: 479121

Читать полностью

    Для того, чтобы купить четырехкомнатную квартиру по адресу: Вологда, Кривой пер., 6, позвоните по телефону +7 (981) 500-76-04. Торопитесь! Объявление №30092461206 о продаже четырехкомнатной квартиры опубликовано 07 февраля 2026.

    Позвонить Написать
    16 900 000 Р220 500 $ или 187 400
    Агент
    +7 (981) 500-76-04
    Начать чат с агентом
    Похожие предложения
    3-к кв. Вологодская область, Вологда пер. Южная роща, 10А (116.2 м) - Фото 1
    3-к кв. Вологодская область, Вологда пер. Южная роща, 10А (116.2 м) - Фото 2
    3-комнатная квартира, общая площадь 116м², кухня 20м²

    Малоквартирный трехэтажный кирпичный дом комфорт класса в престижном, экологически чистом районе города. Большая светлая квартира, окна на 3 стороны, 3 балкона, совмещённый санузел 9 м2. В каждой квартире дома индивидуальные двухконтурные газовые котлы...
    • 116 м²
    • 3-ком
    • 2/3 эт.
    • кирпичный
    17 430 000 Р
    Агент
    +7 (911) Показать номер
    Посмотреть контакты
    3-к кв. Вологодская область, Вологда ул. Леденцова, 7А (153.4 м) - Фото 1
    3-к кв. Вологодская область, Вологда ул. Леденцова, 7А (153.4 м) - Фото 2
    3-комнатная квартира, общая площадь 153м², жилая 51м², кухня 44м²

    Квартира наполненная пространством: светом и уютом, заряженная положительными эмоциями и творчеством. Квартира расположена на 3 этаже в кирпичном доме с благополучными доброжелательными соседями. В доме всего 12 квартир, на площадке 2 квартиры. В квартире...
    • 153 м²
    • 3-ком
    • 3/6 эт.
    • кирпичный
    16 500 000 Р
    Агент
    +7 (981) Показать номер
    Посмотреть контакты
    4-к кв. Вологодская область, Вологда ул. Бурмагиных, 39Б (179.0 м) - Фото 1
    4-к кв. Вологодская область, Вологда ул. Бурмагиных, 39Б (179.0 м) - Фото 2
    4-комнатная квартира, общая площадь 179м², кухня 24м²

    В продаже шикарная квартира в черте города. Расположена на ул. Бурмагиных. Дом кирпичный, на 2 квартиры. Отдельный вход с улицы.Своя придомовая территория.Квартира расположена на двух этажах + зона мансарды, с выходом из квартиры + просторный подвал-гараж,...
    • 179 м²
    • 4-ком
    • 2/2 эт.
    • кирпичный
    16 000 000 Р
    Агент
    +7 (981) Показать номер
    Посмотреть контакты
    3-к кв. Вологодская область, Вологда ул. Южакова, 2 (87.8 м) - Фото 1
    3-к кв. Вологодская область, Вологда ул. Южакова, 2 (87.8 м) - Фото 2
    3-комнатная квартира, общая площадь 87м², кухня 11м²

    Продается великолепная 3-комнатная квартира общей площадью 87,8 м с уютной лоджией 9 м — идеальный вариант для комфортной жизни В квартире выполнен стильный ремонт по индивидуальному дизайн-проекту, который сочетает в себе элегантность и функциональность....
    • 87 м²
    • 3-ком
    • 2/11 эт.
    • кирпичный
    17 500 000 Р
    Агент
    +7 (981) Показать номер
    Посмотреть контакты
    5-к кв. Вологодская область, Вологда ул. Южакова, 15 (183.0 м) - Фото 1
    5-к кв. Вологодская область, Вологда ул. Южакова, 15 (183.0 м) - Фото 2
    5-комнатная квартира, общая площадь 183м², жилая 102м², кухня 22м²

    В продаже шикарная двухуровневая квартира в кирпичном малоэтажном доме. В доме 10 квартир, один подъезд. У дома высокая энергоэффективность B++, тихие соседи, слышимости нет1 этаж: большая прихожая, большая кухня-столовая, гарнитур, гостиная с великолепным...
    • 183 м²
    • 5-ком
    • 5/6 эт.
    • кирпичный
    16 000 000 Р
    Агент
    +7 (911) Показать номер
    Посмотреть контакты

    Не нашли подходящего объявления?

    Оставьте заявку, и наши риэлторы подберут квартиру в районе Вологды

    (0)