4 200 000 Р 50 000 $ или 43 170

Информация об помещении

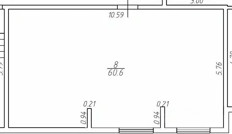
цоколь
Этаж

Состояние и оснащение

Количество этажей
10
Развернуть
Агент
+7 (981) 430-03-75
Начать чат с агентом

Помещение свободного назначения в Вологодская область, Вологда ул. ...

Код объекта: 1675842.Номер:12325. В продаже коммерческое помещение в цоколе жилого дома общей площадью 90,2 кв.м. Помещение прямоугольное, разделено на три части перегородками из гипсокартона. В само помещение с коридора два входа - на обе двери установлены решётки, так же как и на все окна. Напольное покрытие везде керамическая плитка. Сделана приточно-вытяжная вентиляция. Подключено электричество на 15 квт. Проведена вода, установлен санузел. Все помещения содержатся в чистоте.Дом находится в интенсивно развивающемся районе города - идет активная застройка.Возможно использование под различную деятельность либо сдать арендаторам (спрос большой).Имеется два входа в цоколь, где находятся коммерческие помещения: один со стороны улицы Лаврова в центре дома, второй с торца здания.

Читать полностью
    Позвонить Написать
    4 200 000 Р50 000 $ или 43 170
    Агент
    +7 (981) 430-03-75
    Начать чат с агентом
    Похожие предложения
    Помещение свободного назначения в Коми, Сыктывкар Первомайская ул., 40 ... - Фото 1
    Помещение свободного назначения в Коми, Сыктывкар Первомайская ул., 40 ... - Фото 2
    Код объекта: 1384662.Предлагаю Вашему вниманию к покупке уникальное коммерческое помещение в самом центре города по адресу: г. Сыктывкар ул.Первомайская д. 40, расположенное в торговом центре на первом этаже. Помещение правильной формы, имеет общую площадь...
    • 1/9 эт.
    4 300 000 Р
    Агент
    +7 (912) Показать номер
    Посмотреть контакты
    Помещение свободного назначения в Краснодарский край, Анапа ... - Фото 1
    Помещение свободного назначения в Краснодарский край, Анапа ... - Фото 2
    Объект 153571. В центре Анапы продается помещение в цокольном этаже. С хорошим ремонтом , площадью 33 м2, . Пассивный доход не кому не повредит В помещение два больших окна Помещение сухое. Отличное место для проживания, отдыха или ведения своего...
    • -1/3 эт.
    4 150 000 Р
    Агент
    +7 (918) Показать номер
    Посмотреть контакты
    Помещение свободного назначения в Ставропольский край, Ессентуки ул. ... - Фото 1
    Помещение свободного назначения в Ставропольский край, Ессентуки ул. ... - Фото 2
    Арт.Авалон Агентство НедвижимостиПерсональный консультантИпотека / Мат. Капитал / Военная ипотекаЮр. Сопровождение.Помещение под Ваш индивидуальный проект.Высокий коммерческий потенциал, расположено внутри нового ЖК .Парковка.Гипсовая штукатурка стен,...
    • 1/9 эт.
    4 200 000 Р
    Агент
    +7 (988) Показать номер
    Посмотреть контакты
    Помещение свободного назначения в Краснодарский край, Северская ст-ца ... - Фото 1
    Продается нежилое помещение в Торговом центре . Хорошая проходимость. Есть возможность сделать дополнительный вход. Все коммуникации подключены. Также имеется парковка для автомобилей.
    • 1/1 эт.
    4 200 000 Р
    Агент
    +7 (918) Показать номер
    Посмотреть контакты
    Продажа ПСН, Мамадыш, Мамадышский район, ул. Советская - Фото 1
    Продажа ПСН, Мамадыш, Мамадышский район, ул. Советская - Фото 2
    Продажа ПСН, Мамадыш, Мамадышский район, ул. Советская - Фото 3
    Продажа ПСН, Мамадыш, Мамадышский район, ул. Советская - Фото 4
    Продажа ПСН, Мамадыш, Мамадышский район, ул. Советская - Фото 5
    Продажа ПСН, Мамадыш, Мамадышский район, ул. Советская - Фото 6
    Продажа ПСН, Мамадыш, Мамадышский район, ул. Советская - Фото 7
    Продажа ПСН, Мамадыш, Мамадышский район, ул. Советская - Фото 8
    Продажа ПСН, Мамадыш, Мамадышский район, ул. Советская - Фото 9
    Продажа ПСН, Мамадыш, Мамадышский район, ул. Советская - Фото 10
    Продажа ПСН, Мамадыш, Мамадышский район, ул. Советская - Фото 11
    Продажа ПСН, Мамадыш, Мамадышский район, ул. Советская - Фото 12
    Продажа ПСН, Мамадыш, Мамадышский район, ул. Советская - Фото 13
    Продажа ПСН, Мамадыш, Мамадышский район, ул. Советская - Фото 14
    Продажа ПСН, Мамадыш, Мамадышский район, ул. Советская - Фото 15
    Продажа ПСН, Мамадыш, Мамадышский район, ул. Советская - Фото 16
    Продажа ПСН, Мамадыш, Мамадышский район, ул. Советская - Фото 17
    Продажа ПСН, Мамадыш, Мамадышский район, ул. Советская - Фото 18
    Продажа ПСН, Мамадыш, Мамадышский район, ул. Советская - Фото 19
    Продажа ПСН, Мамадыш, Мамадышский район, ул. Советская - Фото 20
    общая площадь 118м², полезная площадь 118м²

    Объект №117119 отличный ГАБ)Продаётся нежилое помещение площадью 118,2 кв. м, расположенное на центральной улице города — ул. Советская, д. 40. Отличное предложение как для собственного бизнеса, так и для инвестиций. Характеристики объекта: 2...
    • 118 м²
    • 2-й эт.
    4 200 000 Р
    Агент
    +7 (843) Показать номер
    Агентство
    ФЛЭТ
    Посмотреть контакты

    Не нашли подходящего объявления?

    Оставьте заявку, и наши риэлторы подберут псн в районе Вологды

    (0)