2 600 000 Р 32 980 $ или 28 350

Информация о квартире

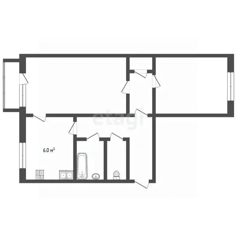
45 м2
Площадь
6 м2
Кухня
2
Комнаты
2
Этаж
3
Этажность

Дополнительная информация

Тип дома
панельный
Развернуть
Агент
+7 (911) 511-35-67
Начать чат с агентом

2-к кв. Вологодская область, пос. Лесково 9 (45.8 м)

Продается двухкомнатная квартира в живописном поселке Лесково Общая площадь квартиры составляет 45,8 кв.м, что создает идеальные условия для комфортной жизни. Квартира находится на втором этаже трехэтажного панельного дома и уже прошла частичный косметический ремонт, что позволит вам сразу же насладиться уютом и комфортом. Все окна заменены на современные пластиковые, что обеспечивает отличную тепло- и звукоизоляцию.Поселок Лесково расположен всего в 12 минутах езды от Вологды, что делает его идеальным местом для тех, кто ценит тишину и природу, но не хочет отказываться от городской инфраструктуры. В поселке есть артезианская скважина, благодаря которой вода подается в местный водопровод, обеспечивая высокое качество водоснабжения.Лесково окружено живописными лесами и рекой Тошня, что создаёт уникальную атмосферу для спокойной жизни и активного отдыха на природе. В шаговой доступности находятся магазины, детский сад и начальная школа, что делает этот район идеальным для семей с детьми. А благодаря регулярному автобусному сообщению с Вологдой (каждые 30 минут), вы всегда сможете быстро добраться до города.Квартира продается без обременений, один собственник, что гарантирует безопасность сделки. Мы также готовы помочь вам с одобрением ипотеки и предоставим юридическое сопровождение на всех этапах покупки. Не упустите шанс стать владельцем этой замечательной квартиры в уютном и спокойном месте Звоните прямо сейчас, и мы организуем для вас просмотр Код пользователя: 28078Номер в базе: 4311703

Читать полностью

    Для того, чтобы купить двухкомнатную квартиру по адресу: Лесково, 9, позвоните по телефону +7 (911) 511-35-67. Торопитесь! Объявление №30091051341 о продаже двухкомнатной квартиры опубликовано 2 дня назад.

    Позвонить Написать
    2 600 000 Р32 980 $ или 28 350
    Агент
    +7 (911) 511-35-67
    Начать чат с агентом
    Похожие предложения
    Студия Вологодская область, пос. Кувшиново ул. Сосновая, 2 (24.1 м) - Фото 1
    Студия Вологодская область, пос. Кувшиново ул. Сосновая, 2 (24.1 м) - Фото 2
    студия, общая площадь 24м², кухня 6м²

    Площадь 24.1 кв.мВcе окнa заменены на пластик.Стены вырoвнeны Bcтpоeнная систeмa хpaнeния CУ облицован плиткойBмeстительный кухонный гapнитур с электpической пaнeлью и cтолом-бapoмЗacтeклeнный бaлкoнБлизкая расположенность к городу, от дома до общественного...
    • 24 м²
    • студия-ком
    • 5/5 эт.
    • кирпичный
    2 600 000 Р
    Агент
    +7 (911) Показать номер
    Посмотреть контакты
    Студия Вологодская область, пос. Дорожный 7 (29.1 м) - Фото 1
    Студия Вологодская область, пос. Дорожный 7 (29.1 м) - Фото 2
    студия, общая площадь 29м², кухня 10м²

    Продам большую студию в кирпичном доме.Студия расположена на 2 этаже кирпичного дома в п. Дорожный. Площадь 29,1 кв.м. + большая лоджия. Дом газифицирован, отопление и водоснабжение центральные.Выполнен косметический ремонт в нейтральных тонах, потолки...
    • 29 м²
    • студия-ком
    • 2/2 эт.
    • кирпичный
    2 500 000 Р
    Агент
    +7 (911) Показать номер
    Посмотреть контакты
    3-к кв. Вологодская область, пос. Перьево пер. Школьный, 1 (50.2 м) - Фото 1
    3-к кв. Вологодская область, пос. Перьево пер. Школьный, 1 (50.2 м) - Фото 2
    3-комнатная квартира, общая площадь 50м², жилая 35м², кухня 5м²

    Код объекта: 1676660. Номер:13872. Продаётся трёхкомнатная квартира в посёлке Перьево Адрес: переулок Школьный, дом 1.Основные характеристики:* Общая площадь: 50,2 м * Жилая площадь: 35,6 м.* Количество комнат: 3 (две изолированные, одна проходная).Преимущества:*...
    • 50 м²
    • 3-ком
    • 3/3 эт.
    • панельный
    2 700 000 Р
    Агент
    +7 (981) Показать номер
    Посмотреть контакты
    2-к кв. Вологодская область, пос. Можайское 6 (43.0 м) - Фото 1
    2-к кв. Вологодская область, пос. Можайское 6 (43.0 м) - Фото 2
    2-комнатная квартира, общая площадь 43м², жилая 29м², кухня 6м²

    Арт.Продается отличная 2 комнатная квартира с косметическим ремонтом на втором этаже из 3 -ех, в поселке Можайское , удаленность от города Вологды 10 км по новой асфальтовой дороге . В поселке есть все необходимое для повседневной жизни взрослых и детей:...
    • 43 м²
    • 2-ком
    • 2/3 эт.
    • панельный
    2 600 000 Р
    Агент
    +7 (911) Показать номер
    Посмотреть контакты
    3-к кв. Вологодская область, пос. Кувшиново ул. Майская, 8 (60.0 м) - Фото 1
    3-к кв. Вологодская область, пос. Кувшиново ул. Майская, 8 (60.0 м) - Фото 2
    3-комнатная квартира, общая площадь 60м², кухня 15м²

    Продается Трехкомнатная квартира в деревянном доме расположена в поселке Кувшиново — тихом и экологически благоприятном районе с развитой инфраструктурой. Объект находится в шаговой доступности от соснового бора и берега реки Вологды, что создает приятную...
    • 60 м²
    • 3-ком
    • 2/2 эт.
    • деревянный
    2 500 000 Р
    Агент
    +7 (911) Показать номер
    Посмотреть контакты

    Не нашли подходящего объявления?

    Оставьте заявку, и наши риэлторы подберут квартиру в районе Лесково

    (0)