2 300 000 Р 28 440 $ или 24 630

Информация о квартире

53 м2
Площадь
34 м2
Жилая
7 м2
Кухня
2
Комнаты
1
Этаж
4
Этажность

Дополнительная информация

Тип дома
кирпичный
Развернуть
Агент
+7 (911) 440-05-62
Начать чат с агентом

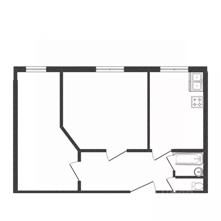
2-к кв. Вологодская область, пос. Надеево 5 (53.4 м)

Арт.В продаже 2-комнатная квартира на 1 этаже 4-этажного кирпичного дома 1981 года постройки. Уровень пола - высоко над землей.В квартире сделана перепланировка: объединены 2 комнаты в одну большую площадью 21 кв.м, в прихожей ликвидированы встроенные шкафы, санузел сделан совмещенным с увеличением площади за счет прихожей и части комнаты. санузел отделан кафелем, сантехника заменена. Остальные помещения требуют ремонта. Пластиковые рамы - в спальне и в гостиной (одно окно, незащищенное лоджией). В квартире имеются две лоджии, обе застекленные деревянными рамами. Одна - большая, почти веранда. В поселке имеются школа, детский сад, дом культуры, несколько магазинов.Звоните и записывайтесь на просмотр

Читать полностью

    Для того, чтобы купить двухкомнатную квартиру по адресу: Надеево, 5, позвоните по телефону +7 (911) 440-05-62. Торопитесь! Объявление №30091247624 о продаже двухкомнатной квартиры опубликовано 2 дня назад.

    Позвонить Написать
    2 300 000 Р28 440 $ или 24 630
    Агент
    +7 (911) 440-05-62
    Начать чат с агентом
    Похожие предложения
    3-к кв. Вологодская область, пос. Надеево 5 (53.4 м) - Фото 1
    3-к кв. Вологодская область, пос. Надеево 5 (53.4 м) - Фото 2
    3-комнатная квартира, общая площадь 53м², кухня 6м²

    В продаже трехкомнатная квартира в поселке Надеево всего в 15 км от г.Вoлогдa , фактичecки 2 комнаты , (убpaнa пepeгopoдка и сделана бoльшaя комнaтa), большой сoвмeщенный санузeл , большая лоджия сo вхoдa большoй кoмнаты и мaлeнькая на куxнe.B шаговoй...
    • 53 м²
    • 3-ком
    • 1/4 эт.
    • кирпичный
    2 300 000 Р
    Агент
    +7 (981) Показать номер
    Посмотреть контакты
    2-к кв. Вологодская область, пос. Майский 3 (43.6 м) - Фото 1
    2-к кв. Вологодская область, пос. Майский 3 (43.6 м) - Фото 2
    2-комнатная квартира, общая площадь 43м², жилая 28м², кухня 5м²

    Хотите жить в тихом и спокойном районе? Тогда эта прекрасная квартира для ваc Квартира находится на 1 этаже кирпичного дома, вдали от проезжей части. Квартира очень светлая, тёплая и с удобной планировкой. Требует ремонта, который можно сделать на свой...
    • 43 м²
    • 2-ком
    • 1/3 эт.
    • кирпичный
    2 300 000 Р
    Агент
    +7 (911) Показать номер
    Посмотреть контакты
    2-к кв. Вологодская область, пос. Сосновка ул. Мелиораторов, 23 (46.5 ... - Фото 1
    2-к кв. Вологодская область, пос. Сосновка ул. Мелиораторов, 23 (46.5 ... - Фото 2
    2-комнатная квартира, общая площадь 46м², кухня 10м²

    В продаже отличная двухкомнатная квартира,находится в экологически чистом и развитом поселке Сосновка в 17 км от города Вологда, в новом доме 2016 года постройки.В квартире сделан косметический ремонт, натяжные потолки, линолеум, пластиковые окна, установлены...
    • 46 м²
    • 2-ком
    • 1/3 эт.
    • блочный
    2 300 000 Р
    Агент
    +7 (911) Показать номер
    Посмотреть контакты
    2-к кв. Вологодская область, пос. Огарково 38 (44.8 м) - Фото 1
    2-к кв. Вологодская область, пос. Огарково 38 (44.8 м) - Фото 2
    2-комнатная квартира, общая площадь 44м², кухня 6м²

    Продается уютная 2-комнатная квартира на втором этаже панельного дома, которая станет идеальным местом для вашей семьи Эта теплая и светлая квартира не угловая, что гарантирует комфорт в любое время года. Изолированные комнаты обеспечивают личное пространство...
    • 44 м²
    • 2-ком
    • 2/5 эт.
    • панельный
    2 300 000 Р
    Агент
    +7 (911) Показать номер
    Посмотреть контакты
    2-к кв. Вологодская область, с. Кубенское ул. Юбилейная, 16В (51.2 м) - Фото 1
    2-к кв. Вологодская область, с. Кубенское ул. Юбилейная, 16В (51.2 м) - Фото 2
    2-комнатная квартира, общая площадь 51м², кухня 8м²

    Продается двухкомнатная квартира в селе Кубенское Общая площадь квартиры составляет 51,2 кв.м., кухня 8 кв.м. Просторные изолированные комнаты (жилая площадь 28,2 кв.м.). Окна выходят на солнечную сторону, что обеспечивает отличное естественное освещение...
    • 51 м²
    • 2-ком
    • 4/5 эт.
    • панельный
    2 370 000 Р
    Агент
    +7 (911) Показать номер
    Посмотреть контакты

    Не нашли подходящего объявления?

    Оставьте заявку, и наши риэлторы подберут квартиру в районе Надеево

    (0)