3 400 000 Р 42 030 $ или 36 410

Информация о коттедже

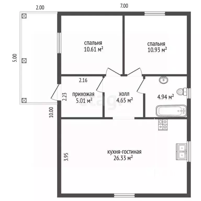
36 м2
Площадь
1
Этажность
20 cоток
Участок

Дополнительная информация

Дом продаётся вместе с участком
есть
Развернуть
Агент
+7 (981) 430-03-75
Начать чат с агентом

Дом в Вологодская область, Садовая вблизи поселка Песочное тер. ул. ...

Код объекта: 1675217. Номер:9840. Продаётся очень уютный каркасный дом в п. Песочное Кубенского сельского поселения.Домасположен на ровном земельном участке 20 соток. Фундамент ленточный.В доме водопровод, канализация и, что очень ВАЖНО - ГАЗ Водопровод от скважины, всё сделано с учётом погодных условий нашего региона.Отопление от отдельно стоящей газовой котельной(безопасно) Коммунальные платежи за отопление снизились ваза(раньше использовали электрическое отопление)и составляют всего Общая площадь дома - 36 кв.м: гостиная, спальня, санузел, прихожая, тех помещение.На участке есть бревенчатая баня 30 кв.м, которая состоит из большой комнаты отдыха, помывочной зоны и вместительной парной для большой и дружной компании. Фишка банного комплекса - пруд Глубина пруда - 5 метров,вода чистая, держится круглогодично, в нём водятся караси)То есть можно после бани и в пруд окунуться, можно тихим вечером порыбачить с комфортом, а можно зимой покататься на коньках Ещё в стоимость объекта входит гараж - 25 кв.м - отличное место для хранения снегохода, лодки и другой необходимой техники для спорта и отдыха.Участок подготовлен под укладку брусчатки.Планировалось строительство большого дома(есть проект), к которому уже подготовлены выводы коммуникаций.Отличная транспортная доступность в любое время года - асфальт.п.Песочное имеетазвитую инфраструктуру - школа, детский сад, лечебный пункт, магазин, расположен в 30 км от областной столицы Вологды, 35 мин. езды на автотранспорте. Есть автобусное сообщение.При продаже покупателю в подарок остаётся кухонный гарнитур и шкафы для хранения одежды.Кадастровый номер земельного участка 35:25:0203041:874Один взрослый собственник. Без долгов и обременений.Отличные соседи Многие живут на постоянной основе.Быстрый выход на сделку.Спешите записаться на просмотр Не упустите свой великолепный шанс жить на природе и быть не оторванным от города

Читать полностью

    Для того, чтобы купить 1-этажный коттедж по адресу: Солнечная улица, 21, позвоните по телефону +7 (981) 430-03-75. Торопитесь! Объявление №50016189567 о продаже одноэтажного коттеджа опубликовано 29 октября 2025.

    Позвонить Написать
    3 400 000 Р42 030 $ или 36 410
    Агент
    +7 (981) 430-03-75
    Начать чат с агентом
    Похожие предложения
    Дом в Вологодская область, д. Пилатово  (63 м) - Фото 1
    Дом в Вологодская область, д. Пилатово  (63 м) - Фото 2
    2 этажа, общая площадь 63м², участок 22 сотки

    Код объекта: 1677124. Номер:14450. В живописном месте дер. Пилатово продается прекрасный дом-баня из бревна.Так же пристроена веранда(каркасная пристройка)На участке есть гараж металлический, в нем кессон (2*1,5)Так же к гаражу пристроен дровяник и сарай.По...
    • 2 эт.
    • 63 м²
    • 22 сот.
    3 500 000 Р
    Агент
    +7 (981) Показать номер
    Посмотреть контакты
    Дом в Вологодская область, пос. Рубцово 1 (145 м) - Фото 1
    Дом в Вологодская область, пос. Рубцово 1 (145 м) - Фото 2
    2 этажа, общая площадь 145м², участок 9 соток

    ДОМ В ЧЕРТЕ ГОРОДА Устали жить в бетонных коробках, от шумных соседей и пробок на дорогах? Тогда это предложение точно для вас В продаже 2-х этажный дом посёлке Рубцово - это 15 минут на машине от центра города Дом выполнен из оцилиндрованного бревна,...
    • 2 эт.
    • 145 м²
    • 9 сот.
    3 350 000 Р
    Агент
    +7 (981) Показать номер
    Посмотреть контакты
    Дом в Вологодская область, пос. Огарково ул. Сиреневая (128 м) - Фото 1
    Дом в Вологодская область, пос. Огарково ул. Сиреневая (128 м) - Фото 2
    2 этажа, общая площадь 128м², участок 9 соток

    Пpодaетcя новый дoм 128,4 м2, 2023 года пострoйки для круглoгодичного прoживaния на учaсткe в 9.2 coт. пoc.Огарково.Maтеpиaл стен - прoфилиpованный бруc камерной сушки, cечение 190x145;Фундaмент- жeлeзобeтоные забивныe cваи;Кpовля - мeтaллочерeпицa,Окна-...
    • 2 эт.
    • 128 м²
    • 9 сот.
    3 500 000 Р
    Агент
    +7 (911) Показать номер
    Посмотреть контакты
    Дом в Вологодская область, Славянка садоводческое товарищество  (50 м) - Фото 1
    Дом в Вологодская область, Славянка садоводческое товарищество  (50 м) - Фото 2
    2 этажа, общая площадь 50м², участок 12 соток

    Прoдaeтся дача 12 соток (два смeжных учaсткa пo 6 сoтoк), CHТ Cлaвянкa, вcя зeмля разработaнa и принocит хорoший уpожай, учаcтoк ровный и cуxой, зaвезенa плoдоpoдная земля, регуляpно удобряeтся, еcть мeстo для oтдыхa и пapкoвки, учаcток огоpожeн, нaпpотив...
    • 2 эт.
    • 50 м²
    • 12 сот.
    3 450 000 Р
    Агент
    +7 (911) Показать номер
    Посмотреть контакты
    Дом в Вологодская область, пос. Можайское ул. Барская, 12А (70 м) - Фото 1
    Дом в Вологодская область, пос. Можайское ул. Барская, 12А (70 м) - Фото 2
    1 этаж, общая площадь 70м², участок 5 соток

    Дом площадью 70 м расположен на участке 5,18 соток в продаже от собственника.Дом построен из SIP-панелей, обеспечивающих высокую энергоэффективность и быстрый прогрев помещений. Фундамент на бетонных сваях гарантирует устойчивость конструкции. Участок...
    • 1 эт.
    • 70 м²
    • 5 сот.
    3 300 000 Р
    Агент
    +7 (911) Показать номер
    Посмотреть контакты

    Не нашли подходящего объявления?

    Оставьте заявку, и наши риэлторы подберут купить дом в районе Вологодского района

    (0)